Sélectionner une page

Village Vacances

ARLEUX – FRANCE

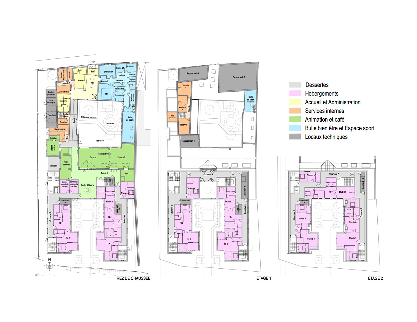
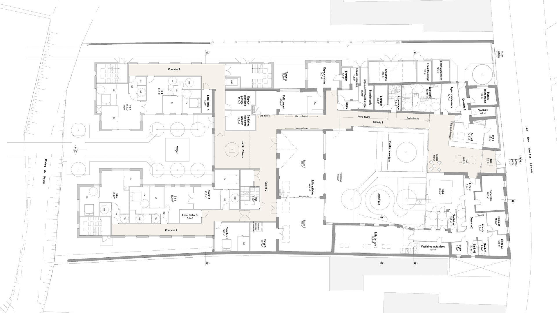
Village vacances

Restructuration et agrandissement d’une ancienne ferme pour la création d’un village vacance intégrant une structure et des équipements adaptées aux personnes handicapées.

Concours 2018

Surface 2 760 m2

Budget 5 125 000 € HT

Maître d’ouvrage : Centre Hélène BOREL

error: